

GRUPO AURI
Somos un GRUPO EMPRESARIAL, dedicada al diseño, calculo y fabricación de estructuras metálicas, con los más altos estándares de calidad y seguridad, que ofrece sus servicios a clientes del sector público y privado de todo el país. Contamos con el personal profesional idóneo para cada área de trabajo, permitiéndonos así culminar con éxito las obras que hemos desarrollado.
La planta cuenta asimismo con amplias áreas de oficinas, donde nuestro personal profesional y técnico, pueden desarrollar los proyectos que nuestros clientes tengan en perspectiva.

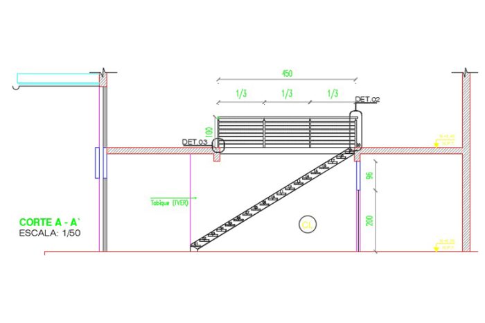
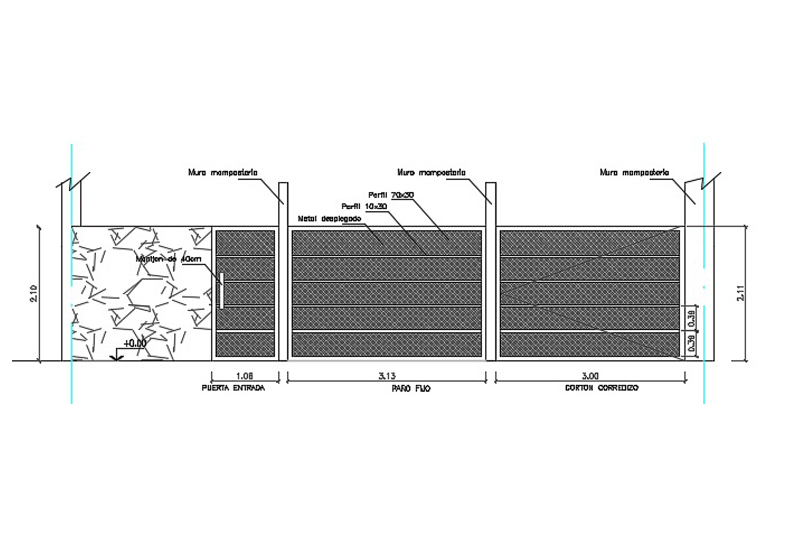
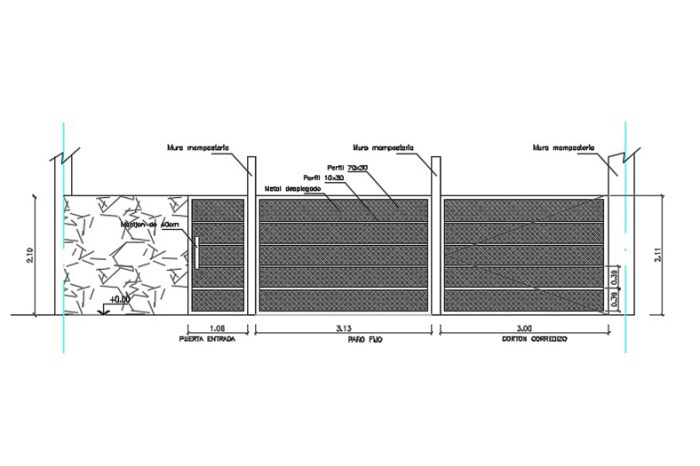
Tenemos todo lo que necesitas sobre los portones industriales. En los portones abatibles, trabajan mediante rodajes pivotantes, tanto en la parte superior e inferior, que hacen que el portón se desplacé en forma de vaivén. En el caso de los portones corredizos, trabajan con ruedas que varían según el tamaño del portón.

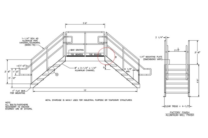
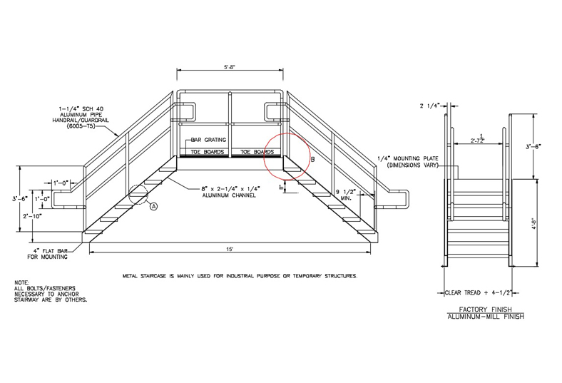
Contamos con la última tecnología para asesórate en el diseño, fabricación e instalación de accesos con plataforma o pasarelas. De esta forma, nuestro equipo técnico te proveerá con las simulaciones en 3D necesarias y los cálculos de estabilidad estructural para cumplir con tus requisitos y los de la normativa vigente.
Nuestros diseños de escaleras industriales con plataforma son autoportantes para afectar lo menos posible a la estructura de tu edificio. De esta forma, nuestro equipo de diseño procurara minimizar el uso de soportes externos tratando de garantizar en todo momento la entrega de soldaduras en continuo.
Para ello, nuestro equipo técnico siempre estará a tu disposición para asesorarte sobre qué es lo mejor para tu caso.

Nuestras Rejas Metálicas son ideales para ser colocadas en todo tipo de negocios, por su robustez y por la calidad de los materiales. De esta forma, evitarás que puedan surgir problemas añadidos. Buscamos la seguridad íntegra de tu hogar o negocio. Por ello, tenemos todo tipo de rejas de seguridad. Si además te preocupa la estética del producto, contamos con rejas artísticas para ventanas que harán tus delicias, ya que la seguridad no está reñida con lo bonito.

Diseño y Cálculo asistido por computadora, para la elaboración de planos de estructuras metálicas y de construcción cumpliendo el Reglamento Nacional de Edificaciones y Habilitaciones Urbanas.

Elaboración de componentes metálicos, usando maquinarias de alto rendimiento y los más óptimos procesos de producción, que aseguran una buena calidad del producto final.

Armado e instalación de estructuras metálicas, cumpliendo con los tiempos según el cronograma y planificación del proyecto, realizado por personal altamente calificado siguiendo todos los protocolos de seguridad.

Somos especialistas en la construcción de varios tipos de plataformas industriales de acero. Estructuras independientes o adaptadas a la máquina o máquinas existentes. Plataformas metálicas para trabajo liviano o pesado, resistentes a la corrosión. Diseñamos y fabricamos varios tipos de plataformas de acuerdo con las normas de salud y seguridad y varios estándares. Las plataformas deben cumplir una serie de condiciones de resistencia y estabilidad. No pueden transferir vibraciones a otros elementos de la estructura. Somos capaces de diseñar y fabricar soluciones a medida de acuerdo con los requisitos individuales y varios estándares. La plataforma de acero más grande se fabricó para un evaporador de calor residual de tres etapas.
La plataforma puede estar hecha de acero al carbono, acero inoxidable, acero galvanizado o con recubrimiento en polvo. El recubrimiento en polvo está disponible en cualquier color de la paleta ral. Antes de la producción de cada plataforma, se realizan los cálculos apropiados para optimizar los costos de producción manteniendo una alta seguridad y durabilidad. Nuestros ingenieros pueden realizar cálculos FEM de la plataforma y garantizar que la construcción sea segura.